Srednjak

765000

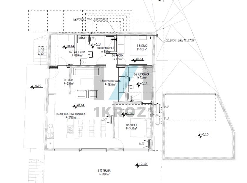
Tlocrt

Opis

Prodaja, stan, Srednjak, Gornja Kustošija, 2 etaže, 195 m2, 3 parkirna mjesta u dvorištu, potpuno opremljen vrhunskom tehničkom opremom i namještajem, novouređen. Otvoren pogled, mirno okruženje, velike, izolirane terase. Donja etaža se sastoji od wellnessa ( saune, wc a i velike sobe) 40 m2 i terase  50 m2, gornja etaža je stan  sa 2 sobe, 2 kupaonice, velikim walk in ormarom, kuhinjom i blagovaonicom od 100 m2 i terase od 91 m2, sve namješteno i opremljeno vrhunskom tehničkom opremom i namještajem. 1.5 km od okretišta Črnomerec. 

Nekretnina

Grad: Grad Zagreb
Naselje: Črnomerec
Godina Izgradnje: 2023
Površina: 195 m2
Kat: Prizemlje
Namještenost: Potpuno Namješteno
Broj Soba: 5
Tip: U Kući

 

Klima
Građevinska Dozvola
Gradska Kanalizacija
Vrt
Gradski Plin
Lokacijska Dozvola
Terasa
Uporabna Dozvola